揭秘:194㎡温馨美式,顶跃洋房的蜕变之路

轻奢品质 ▪ 悦享生活
 
推荐阅读 :
揭秘 | 平面图PK实景照,108㎡现代简约风,轻奢有品
东莞健明迪
楼盘:世豪 • 金河谷
面积:194㎡
户型:顶跃洋房
案例名称:欢乐颂
 
设计师 余松霖
 
余松霖
首席设计师
擅长风格:田园、美式乡村、中式、地中海
从业时间:8年
毕业院校:西南交大
 
业主需求:期待温馨的家庭生活、喜欢热闹、三代同堂、御宠之家

设计主题:悦享生活,以舒适多功能为主,同时不失怀旧和浪漫

设计关键词:自然闲适、亲近自然、温馨浪漫、互不干扰

功能布局优化:
 
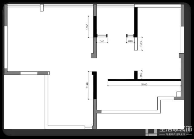
01 原户型弊端
 
原户型弊端
 
一楼户型特质:空间灵活多变
 
一楼户型弊端:搭建楼梯的空间有限,主卧空间分割零碎,生活阳台空间很局促
 
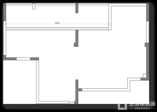
楼户型弊端
 
二楼户型特质:空间灵活多变
 
二楼户型弊端:原始墙体挡住了采光,梁位畸形高度有限,无明确分区
 
02 优化设计方案
美式洋房 优化设计方案1

美式洋房 优化设计方案2
 
一楼优化方案
 
搭建镂空的部分
将客厅后面的小房间打通拓展客厅开间
将客厅延伸至客厅阳台
校准厨房的门洞
将主卧空间进行明确划分
压缩原有的主卫空间留给步入式衣帽间
 
美式洋房 一楼优化设计方案1

美式洋房 一楼优化设计方案2
 
二楼优化方案
 
打通隔墙把光引进房间
功能分区的同时弱化部分梁位和墙体
 
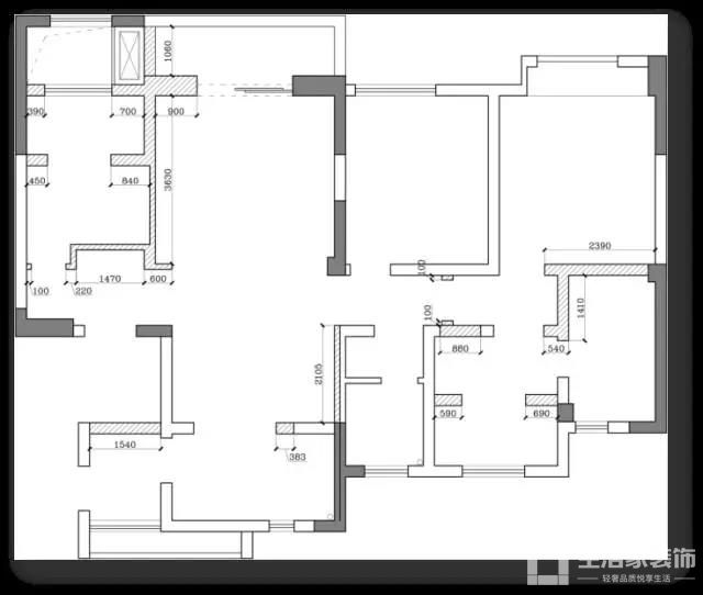
03 平面布置图
 
一楼

美式洋房 平面布置图
 
 
设计亮点:针对客厅的不足把客厅和阳台贯穿增加空间和采光,入户处搭建楼梯把小房间也纳入客厅空间
 
卧室得到妥善处理,虽然把原有的套房分为两个卧室,不过卧室空间并没有因此受到影响用反而分区得到明确划分。
 
步入式的双排衣柜在满足储衣量的情况下还可以将居住者的衣物进行区分。
 
二楼
 
美式洋房 二楼设计图
 
设计亮点:梁位异型导致大多空间处于不好使用的情况,做成衣帽间和储物间是最佳的选择
 
打通了阳台的隔墙阳光引入整个房间,楼梯平台是做书房的好位置,大气的四推门在不影响采光的情况下很好的分割的两个空间。
 
剪力墙后面是卫生间的位置,采光和换气都能得到妥善处理。
剪力墙
 
风格引导:自然,闲适的美式慵懒生活、温馨美式
 
文化阐述:
 
自在,随意的不羁生活方式,没有太多的修饰和约束,不经意间也成就了另一种休闲式的浪漫,它有着偶欧罗巴的奢侈和贵气,但又结合了美洲大陆这块水土的不羁。
 
色彩搭配
 
色彩搭配
 
 
 
家居质朴、简洁怀旧、实用舒适;暗棕、土黄为主的自然色彩。
 
设计效果呈现:
 
01 客厅效果图
 
美式洋房 客厅效果图1

美式洋房 客厅效果图2
 
 
 
02 卧室效果图
 
美式洋房 卧室效果图
 
03 书房效果图
 
美式洋房 书房效果图
 
 
创作理念:“死磕”
 
构建生活方式
只是设计的一个局部
完整的设计是帮您找到
适合自己的整体家居解决方案

顶跃洋房
 
揭秘:194㎡温馨美式,顶跃洋房的蜕变之路
公司简介
健明迪装饰提供的揭秘:194㎡温馨美式,顶跃洋房的蜕变之路,东莞健明迪;轻奢品质▪悦享生活;推荐阅读:揭秘|平面图实景照,㎡现代简约风,轻奢有品;东莞健明迪;楼盘:世豪•金河谷;面积:㎡;户型:顶跃洋房;案例名称:欢乐颂设计师余松霖余松霖;首
揭秘:194㎡温馨美式,顶跃洋房的蜕变之路
揭秘:194㎡温馨美式,顶跃洋房的蜕变之路
揭秘:194㎡温馨美式,顶跃洋房的蜕变之路
揭秘:194㎡温馨美式,顶跃洋房的蜕变之路

为您推荐
【搭配】客厅沙发知多少?

【搭配】客厅沙发知多少?

【新手手册】 家装材料选购“宝典”

【新手手册】 家装材料选购“宝典”

【室内装修】复式楼的三大装修要点

【室内装修】复式楼的三大装修要点

卧室小?这么装,让你的卧室大一半!

卧室小?这么装,让你的卧室大一半!