【案例分享】城市慢调:用生活,唤醒对家的热情

其他空间细节展示
 
   
 

   下一篇推荐:卫生间
 
影音室
 
    很多家庭都会畅想拥有一个影音室,可以非常私密地享有一场视觉盛宴,本案中将影音室与书房结合,功能的区分全凭光线调节,既能当做一个家庭影院使用,又能在平时作为办公学习的书房,非常地人性化。
 
    没有过多华丽的装饰,温暖的色调带给屋主人静谧、舒心的感觉,让忙碌一天的你可以轻松卸下身上的“压力”。
 
    卡通的元素充斥着整个空间,为冰冷的北欧风格注入了一丝活力,卡通的墙绘、卡通的门帘……无一不在提醒着每一个访客,这是一个拥有两个小主人的温馨之家。
 
卧室
餐厅
    原木风格的餐桌餐椅,在延续空间整体风格的同时,更传递一种健康的生活态度,柠檬黄的餐椅靠背与沙发的颜色互相呼应。 看似漫不经心的,随意一挂的照片墙,记录着一家四口温馨的点滴,更为整个空间营造了一丝灵动。
 
客厅
    两个人的时候,可以也应该住得肆意任性、住得“为所欲为”,然而四口之家更多要去权衡的是一家人的和谐关系,除了让居所环境更宽敞,每个空间的独立特色同样重要。
    客厅是一家人集聚交流的最常用空间,务必要制造出协调而又温暖的气氛来。北欧有极简的性冷淡色系,也有明快活泼的温馨搭配方案,在本案中,大量柠檬黄的点缀,惊艳地为客厅提亮之余,带来了更多活泼的气质。
 
    让人头疼不知该如何布置的电视墙如果不想过于复杂,做一面小小的文化石砖墙、依靠不对称的几何感拼凑、与灰色墙面形成反差,意外地打造出小小的摩登范儿。
 
    把小朋友的玩具直接收纳展示在外,反而并不会觉得乱糟糟,而是成为了一面小小的装饰墙,也能方便小朋友的玩耍,是功能与设计的完美结合点之一。
 
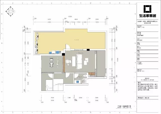
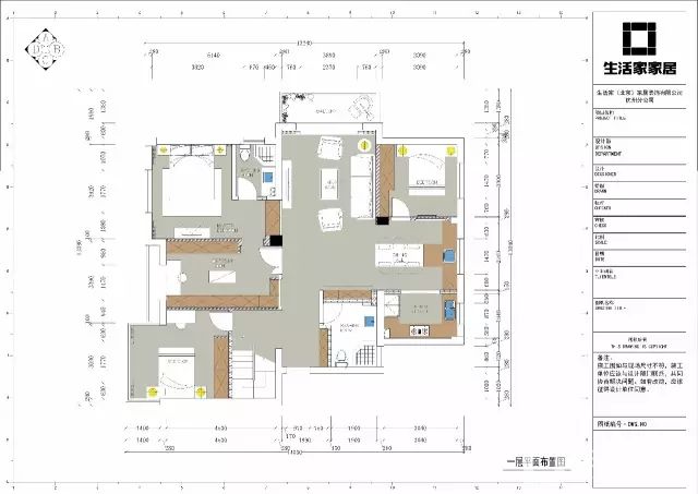
平面布置图
   
    本案的原始户型结构无法满足业主提出的居住要求,因此设计师在设计布局上进行了些结构的改造:调整了上楼的楼梯位置;
    又由于整个二层是斜屋面,设计师基于业主提出的功能要求的基础上,为业主划分出影音室、健身区、客房以及户外的BBQ露台等独立空间,以满足业主的居住需求。
 
    今天的内容依然是“案例赏析”哦,通常其他业主家的装修设计情况,希望能给到正在考虑装修的你一点灵感,本案将带大家欣赏的是建面150平左右的复式住宅,风格以简约北欧为主打元素,屋主是一对年轻小夫妻,颇具时代潮流感。
 
【案例分享】城市慢调:用生活,唤醒对家的热情
公司简介
健明迪装饰提供的【案例分享】城市慢调:用生活,唤醒对家的热情,;沙发墙丨经典失败案例对比,帮你避开那些坑;其他空间细节展示;下一篇推荐:卫生间;影音室
【案例分享】城市慢调:用生活,唤醒对家的热情
【案例分享】城市慢调:用生活,唤醒对家的热情
【案例分享】城市慢调:用生活,唤醒对家的热情
【案例分享】城市慢调:用生活,唤醒对家的热情

为您推荐
儿童房装修设计要点

儿童房装修设计要点

隔断墙装修设计注意事项

隔断墙装修设计注意事项

楼梯踏步设计要点

楼梯踏步设计要点

别墅室内楼梯设计

别墅室内楼梯设计