居住人口较多的话,衣物清洗的需求就更大,加上家里有小朋友,客户购买2台滚筒洗衣机,和储物柜一起嵌入进去,旁边结合打造了洗衣台,整个空间干净整洁,并且实用又美观。

卫生间
为了方便每个人使用,公共卫生间采用传统蹲便+浴室柜+淋浴花洒的设置,浴室柜选用镜面加储物双功能款式,增加储物空间。

女儿房
次卧是业主为其女儿专门打造的女儿房,墙面采用米色乳胶漆,让整个房间很温暖。简单具有卡通软装的小床也十分可爱,搭配厚重纱质的粉粉窗帘,使得整个房间公主范儿十足。


主卧
主卧是根据女业主的意愿来进行打造的,满足她一颗少女心。墙面和窗帘相呼应采用粉紫色来装饰,让房间十分温馨。床的右侧取消了传统床头柜的摆放,为女业主放置了专门的梳妆台。床头灯选用时尚感十足的的吊灯,即满足照明功能又具有装修效果。


厨房
厨房的墙地砖拼接铺贴具有时尚感,为了增加储物空间,客户选择使用集成灶,更具一体化。同时为了方便使用,将对开门冰箱做了嵌入式处理。

餐厅
现餐厅的位置原结构是一间房间,原餐厅被楼梯占用后,设计师就将这个房间改造成了餐厅,这样厨房一出来就是餐厅,炒菜端菜及收拾就更加方便。客厅和餐厅用矮柜进行划分,既做了空间区分又让整个公共空间比较通透。餐厅旁边做了整排酒柜,收纳东西十分方便。


客厅
原始户型客餐厅是纵向结构,楼梯在旁边卧室的位置,餐厅在现楼梯的位置,设计师将楼梯改在了原餐厅位置,保留了旁边的卧室,因此客餐厅变成了横向结构,这样整个空间更开阔,业主的生活动向也更方便。客厅电视墙面积不大,因此只采用了乳胶漆分色,结合电视柜和低柜进行装饰,整个效果简洁大气。





入户
进门位置做了一排到顶鞋柜,方便鞋子的收纳和进出小物品的摆放。

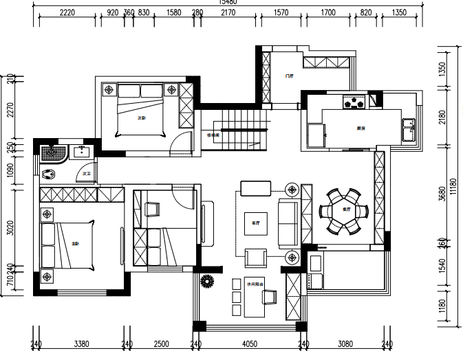
户型图

楼盘:美宇悦庭
面积:建筑面积125㎡,四室两厅一厨两卫
风格:北欧风格
设计师:赵丽莎




Copyright © 2022.广州市健明迪有限公司 .粤ICP备2022046874号