
卫生间的设计紧凑有质感,钻石形浴室很好地保证了干湿分离。大理石地砖加上灰色的墙柜,很好地增添了卫浴空间的宁静氛围,在这样的空间里淋浴放松,能够让人感到家的温暖。

不怕灰粉不搭调,就怕生活没想法。设计师在设计家的时候,需要有很强烈的大局观,否则很容易一招不慎,满盘皆输。在色彩的搭配使用上,既要大胆,又不能太随性。在家装设计中,设计师敢不敢用是一回事,业主对自己生活的构想才是最重要的。这个灰粉世界,能够让业主很好地享受属于自己的生活。


卧室的色彩基调非常有质感,仅用了莫兰迪灰和蒂芙尼蓝。这样的空间里,能够有这种层次的颜色作为背景色, 很能提升它的高级感。恍然之间,仿佛进入了一个奢侈的空间里。但实际上它最重要的功能是让人觉得温馨舒适。
书房


书房与客厅仅一墙之隔,关键是这个墙还是玻璃墙。在这一点上,既保留了一丝神秘感,又为家庭成员之间的互动增加了一丝温情。书房里做了榻榻米式的收纳,也可以简单地铺上垫子和床,作为客房。在空间的利用率上,近乎达到了100%。开放式书架排比式的摆放更为整洁,可以更方便从里面找到自己需要的书籍,也更加通透。
餐厅


由于整个生活空间并不大,餐厅、厨房、客厅实际上是三位一体的。这样的设计让动线非常简单,即便户型不大,也不会磕磕绊绊地让人觉得几个人生活需要让来让去。开放式厨房的设计,让整个房间的采光变得更加明朗。烹饪完成后无缝端上餐桌,紧接着又可以洗碗刷锅,在生活的便利性上相当值得称赞。
客厅



从客厅的结构上来看,布局相当简单。一个深灰色的3人沙发,两个粉红色的沙发椅,配上大理石台面的金属底座茶几,显得非常安静。斜条纹布局的木地板将客厅的设计感拉升了一个档次。阳台上的灰色窗帘映衬着整个空间的色彩基调,粉色通天阳台柜起了非常好的点缀作用。这种撞色系,一冷一暖,在灰度上却非常协调。
-设计师:张倩(健明迪装饰)

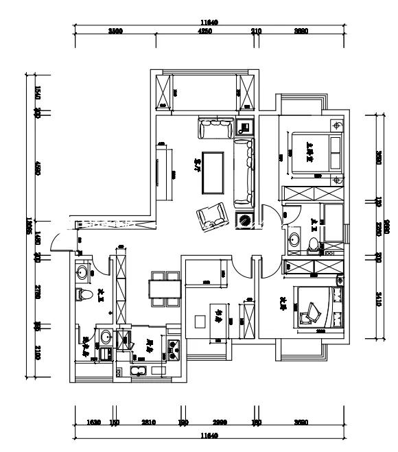
该户型为3室2厅2卫的结构,动线设计是最大的亮点。在规划的过程中,非常巧妙地利用了采光,布局可以用“精彩”来形容。
-风格:现代简约
-户型:3室2厅2卫
-面积:160m²
-坐标:西安
粉色是少女心,灰色是绅士气度,两者似乎很搭调。但在色彩搭配上面,不能靠主观想象,有很多撞色系一不小心就成了车祸现场。真正的撞色,得温和、舒适,一点都不突兀。
房屋布局




Copyright © 2022.广州市健明迪有限公司 .粤ICP备2022046874号