
主卧在改造时,将墙面延长到了主卫的开门处,并改变开门方向,将主卫包进卧室内。同时,主卫借助飘窗实现了干湿二分离。

▲主卧改造
卧室整体色调偏冷,浅黄色为空间增添了一丝温暖。收纳柜的上方和下方都采用了轻微的线条设计,让整体有悬浮感,柜体中间留出了空隙来放置电视,也可以作为台面使用。

客厅&儿童房&衣帽间

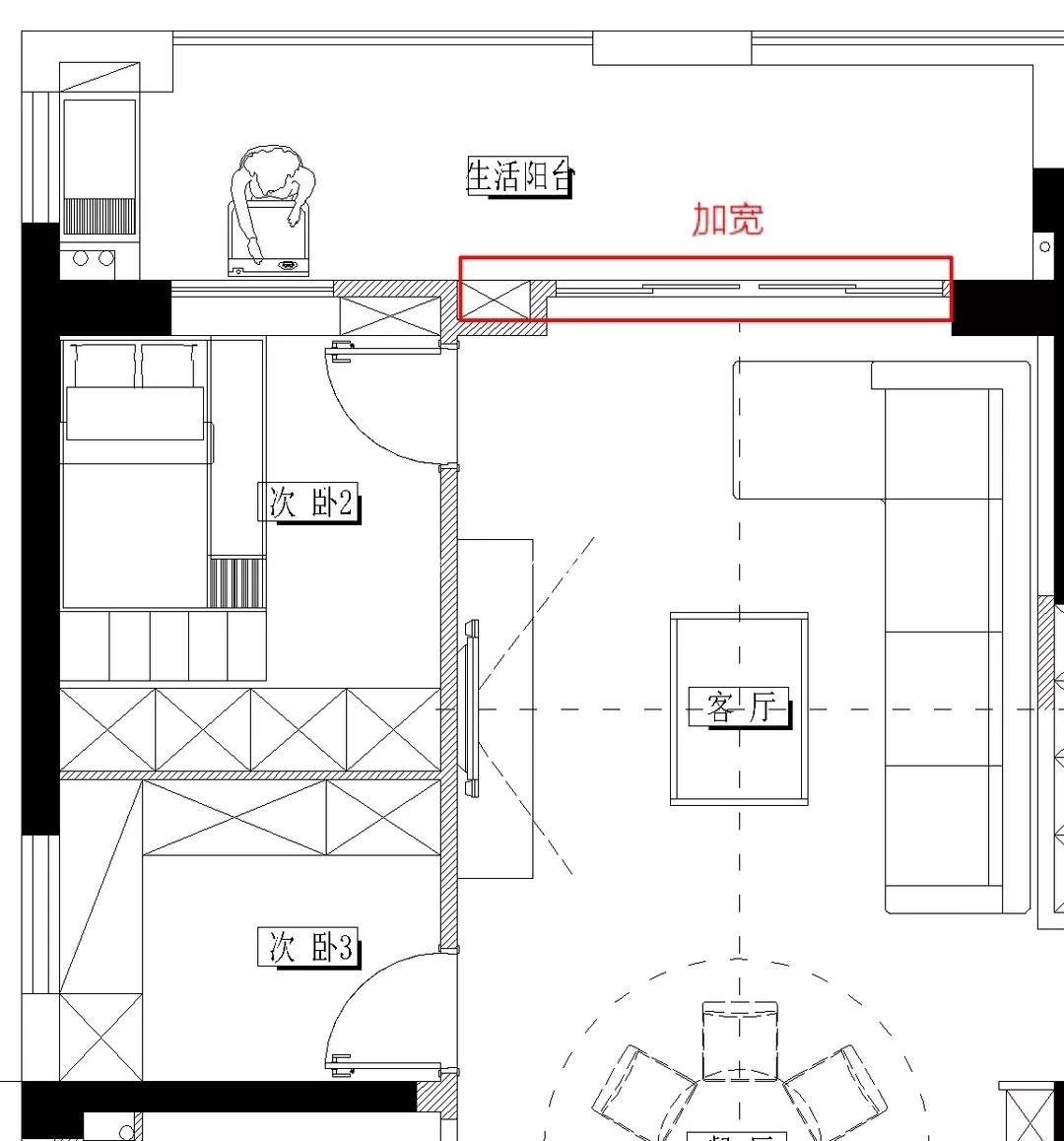
客厅的改变来源于布局的改变。原始布局客厅在左侧,而第三室在右侧,为了满足五室需求,改造时将客厅与第三室位置互换。

▲原始布局

布局重新调整后,原先阳台的玻璃推拉门也被加宽,左侧空间被分隔成了两个房间,一间是儿童房,一间作为衣帽间。

▲改造后的平面布局
儿童房选择了上下铺,为不同年龄的孩子准备,增加了空间的使用性。但也看得出业主为此做出了牺牲,整面墙的收纳柜有一部分在使用时不是很方便。


衣帽间本来是作为次卧,但考虑到整个空间的收纳比较少,最终将这间次卧整体改为了衣帽间,利用两面墙嵌入了一组通天柜,并留出了窗口,便于通风。

阳台根据业主的需求设置了中式茶室,可以一边喝茶一边俯瞰城市风景。

03
餐厅&厨房

餐厅与厨房相邻,陈先生家里平时人口比较多,所以采用了圆形餐桌,考虑到餐厅空间,厨房也适当进行调整,采用了U型设计,并刚好留出一个冰箱的空间,将它嵌入其中。

▲餐厨
圆形餐桌不仅满足了多人用餐需求,也让空间看起来不显得那么局促。一侧的墙面设置了一组酒柜用于陈列酒和装饰物品,酒柜底部有收纳柜用于收纳,整个餐厨结构以紧凑实用为主。
02
玄关


▲玄关
因为厨房占用了过道部分面积,所以整个玄关显得前宽后窄。而右侧是整个空间唯一的采光点,改造时将入户右侧设置成了休息区,并嵌入两组收纳柜。左侧是一组通天的鞋柜,中间部分留出了空间用于放置花卉。
玄关后半部分紧邻厨房和客卫,因为厨房占用了部分面积,加上客卫,整个过道显得狭小昏暗。考虑到这一点,在改造时特意将客卫的墙面去掉,采用镂空格栅加以分隔,减少了空间上的紧迫感。

01
-设计:健明迪家居

▲原始户型图
原始户型为3室2厅2卫的结构,客餐厅的采光也非常不错,但考虑到业主的需求,后期改造时将客厅的位置改变,并将3室改为了5室,增添了单独的书房和衣帽间。

▲改造后的平面布局图
-风格:现代简约
-户型:5室2厅2卫
-房屋面积:125m²
在拜访二十余个小区后,黄埔的住宅给我留下了一个深刻的印象:它们的户型都比较方正,并且没有提前划分空间,也没有明确的几室之分。但正因为如此,留给业主发挥的空间便更多了,可以根据自己的喜好和使用需求来设计房间布局。 陈先生家便是将3室的户型改成了5室,并且显得绰绰有余。




Copyright © 2022.广州市健明迪有限公司 .粤ICP备2022046874号