宽阔的庭院可以说是独立住宅最大的优点所在,假山、植被、石桌一应俱全,这些都是屋主平时的爱好。屋内好好睡觉,屋外陶冶情操,这应该就是独立住宅的好处吧?
你要说它唯一的缺点,那便是夏天会十分炎热。


主卧
既然4层楼的最终目的是好好睡觉,主卧便理应是主角,于是我开门便看见这张只听闻而未见过的“罗汉椅”。
起初业主也不想这么“高调”,想着随意摆放两个小沙发便可,但因为儿子总是喜欢往主卧床上躺,每次整理好的被子又变成了一团糟。于是屋主想了一个办法,买个能躺的沙发。如果是单纯的沙发,选择太多,又不能与整体风格搭配,经过挑选最终选择了这款同样具有中式风格的罗汉椅。
椅子中间的木桌拿掉以后便能成为一张小沙发,可以在此午后小憩。

而椅子的软垫设计同样十分精致,采用了大量刺绣,蓝棕色的搭配让人不禁想起宫廷剧里贵人们身上穿着的绸缎。

在设计主卧时,关于要不要设置衣帽间,屋主思考了很久,但在最后考虑到采光和储物能力,还是放弃了这一决定。
一般来说主卧设置衣帽间室是为了与主卫隔断,但该户型主卫不在主卧内,也就不需要特意去考虑这一问题。


03
书房
书房犹如一个缩小版的客厅,无论是吊顶还是窗帘都保持一致。墙面采用了拼接式软包,梅花图案彰显了中国风的古韵,无论是两侧的书柜还是两张边椅都呈对称式摆放,体现了中式传统的中庸之道。

屋主的儿子经常会在这里上网看书,头顶的吊扇灯是屋主为儿子特意挑选的,照明、制凉两不误。

书房的一旁是二楼楼梯,屋主在楼梯入口一侧增加了一个吧台来充当与餐厅之间的隔断,间接地使餐厅与书房之间的连贯性增强,即使不到餐厅,也可以在吧台与餐厅的人进行互动了。
随着楼梯盘旋而上,便能到达二楼卧室。楼梯顶部的吊顶同样采用了下沉式设计,使得高耸的空间显得更加深邃。

02
客厅
穿过玄关,步入厅堂,一派传统中式的大气映入眼帘。因为屋主钟爱实木,特意选择了整套红木木材来打造空间。
吊顶采用了下沉式设计,红木虽好,但大面积使用会显得平淡寡味,这样的吊顶设计增加了空间的互动感,如呼吸一般起伏,活跃了气氛。
同时,下沉式吊顶表面采用了白色墙纸的包裹设计,在暖色灯光的搭配下还原了原始木房木顶的风格。

大理石上墙是中式风格常有的设计,与红木搭配使整个空间的格调更加协调,如果换作是白色乳胶漆墙面,那中式的意境便会大打折扣。
因为黄埔的天气潮热,屋主特意选择了布艺与实木结合的沙发,主要还是为了实用性。沙发背景墙同样采用黑色大理石,并在表面做了一组实木镂空屏风。

屋主喜欢开放式的设计,所以整个一楼除了客卧之外没有一道门,为了保证良好的透气性,客厅电视墙两侧都做了实木镂空屏风,与背后的书房相连,极大地增加了两个空间空气的流动。

01
车库—>工作室—>起居室—>卧室。
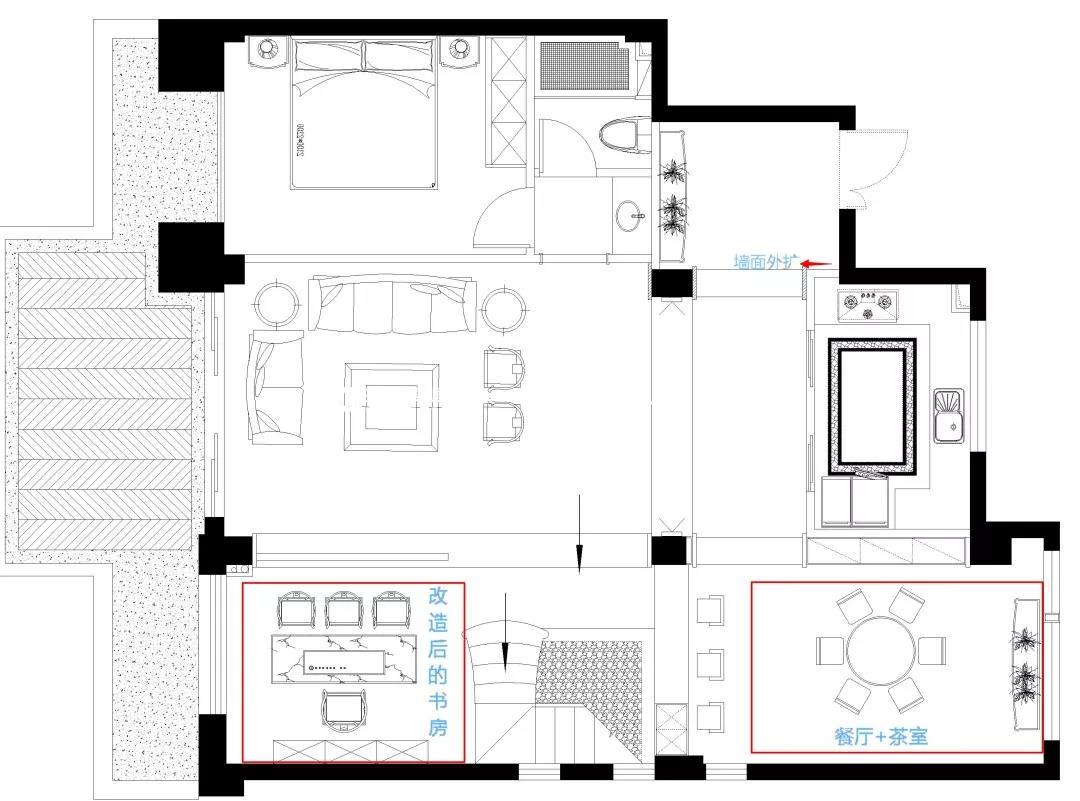
因为只需要满足居住,很多空间也就能省下来了,原先一楼起居室为3室,因为二楼保证了居住条件,改造后一楼只留下一间客卧,其余两间卧室改为餐厅和书房。

▲卧室改书房

▲正前方为餐厅
起初餐厅在客厅与厨房之间,厨房十分狭窄,餐厅改变位置以后,将厨房墙面外扩,增大了厨房面积。

▲一楼改造后平面布局图
-设计:健明迪家居

▲一楼原始户型图
住宅分为地上两层和地下两层,从下到上依次是-风格:中式
-户型:4室2厅3卫
-房屋面积:300m²
每当我们开始琢磨室内设计时,总想着怎么样利用空间才能更省?怎么才能提升空间的功能性?为此,我们往往会对空间做出一点牺牲,或许是孩子的娱乐空间,又或许是老人的茶室花园等等。 但对于屋主陈先生来说,他不想做出这样的牺牲,如果一套不够,就买两套,如果功能不够,那就分开来使用。于是,他选了一处远离市区安静的地段建起了自己的家,300m²四层的独立住宅,只是为了满足“日常生活”(睡觉),至于休闲娱乐,那是另外一个家需要考虑的。




Copyright © 2022.广州市健明迪有限公司 .粤ICP备2022046874号