

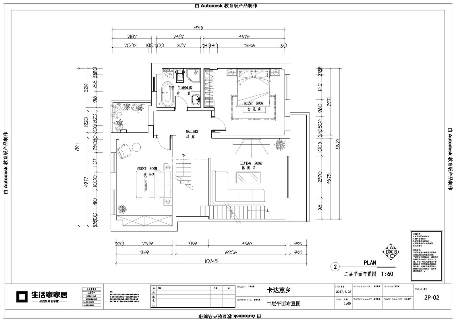
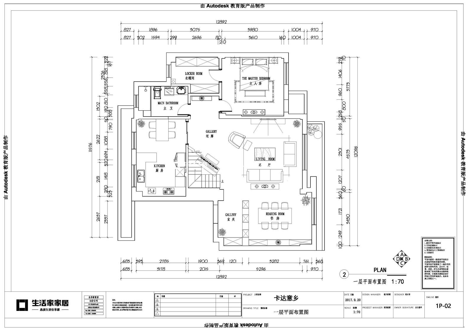
原始户型分析:本案为三层阁楼,带阁楼的居室最大的优点就是多了一个空间,无论是休闲区还是功能区,你都可以随意将其装修成自己喜欢的样子。
客厅

深棕色沙发搭配深灰色窗帘,原木色茶几产生视觉跳跃,奶牛坐凳平添几分趣味,家里的一草一木都在诉说着主人的情愫,于世事纷繁中寻找一方生活的净土。

子弹型收纳架与整体的北欧风格相比,更加充满异域风情,谁说生活必须循规蹈矩?思绪可以天马行空,家,当然也可以,大到安防系统,小到小米智能水壶,这一切也暴露了业主对智能家居的喜爱。
工作区

开放式书柜是一大亮点,主人的喜好一览无余。如果家中有大型聚会,工作区还可以兼具餐厅的功能,八方来客,开怀畅饮,其乐无穷。
厨房

厨房是女主人的“战场”,也是美食的诞生地,棕色橱柜镶嵌烤箱、蒸箱、洗碗机,解放双手,为爱护航。厨房吊灯错落有致,仿佛跳动的音符,吟唱哆来咪发~
主卧

灰蓝色背景墙,反应出主人沉稳的性格,灰色床单与深紫色窗帘打造出优雅舒适的睡眠环境。落地窗宽敞明亮,早起打开窗帘,就能沐浴清晨满满的阳光。
次卧

每个女孩心中都有一个公主梦,人都说女儿是爸爸前世的情人,本案也正是在男主人的要求下,打造了一间甜蜜梦幻的女儿房,粉红色的纱幔萦绕,像极了公主的皇冠,花瓣形吊灯,仿佛洒下了世间所有的美好。
阁楼

阁楼是为主人精心打造的私人专属空间,与卧室较远,私密性强,无论是下棋喝茶还是K歌观影都没有影响。
这套165平方米的房子,整体以北欧风格呈现,又加入了许多个性时尚元素,设计师让家具更多的充满原木韵味,简洁又贴近自然,整个设计中的流畅线条也是富有时尚感和现代感,不失为一个充满创意的精致作品。
今天小编为大家带来的是案例是北欧风格,没有想象中的那种复杂花哨,摒弃那些墙面的装饰纹样和图案,以简洁为主,只用线条、色块来进行区域划分。设计本身没有好坏之分,只要你喜欢的,就是最好的,奢华瑰丽并不总优于单纯质朴。
户型:三室
面积:165㎡
-




Copyright © 2022.广州市健明迪有限公司 .粤ICP备2022046874号