
阳台中的地中海墙面和灰色地砖,把这个空间衬托得非常温馨。金色的灯饰配合了白纱点缀,嵌入式洗衣机和储物柜在节省空间的同时,还给出了一个小台面让你能摆放绿植,让这个原本属于工作区的场所,得以增添一些小情调。
生活阳台
深色皮质大靠背床头与蓝色背景墙完美融合,金属灯饰点缀的复古风十足。一排到顶衣柜增大了储物空间,完美收纳了卧室里日常生活的衣物与杂物。

床边放置的小地毯,使整个空间都温馨可爱起来,让你一睁开眼睛,在萌萌的地毯上开始新的一天。
主卧

蓝色为主色调的面墙为底色,起到压低空间的效果。地面灰色系瓷砖提升了一定的档次和视觉感受。深色的皮质座椅搭配黑金色椅腿,符合整个家轻奢的调性,环环相扣。

坐在这样的桌子前,有没有感觉食欲会更好呢?清爽的桌面与蓝色墙色相得益彰,桌上的玻璃制品让每一顿饭都变得清新可口。
餐厅

客厅中大面积的线条使得空间得到更多的利用和衍生,满足了屋主想要视觉延伸的需求。原木的浅色布艺沙发,墨绿色的单品点缀显得活泼跳动。采用了2019年最流行的金属元素作为壁灯,时尚有张力。

电视墙沿用了线条勾勒,实现了复古纯净的视觉效果。单人沙发色调与窗帘一致,是整个客厅空间更有色彩层次。
客厅
案例档案
装修造价:17万
案例风格:简约轻奢
装修面积:64㎡
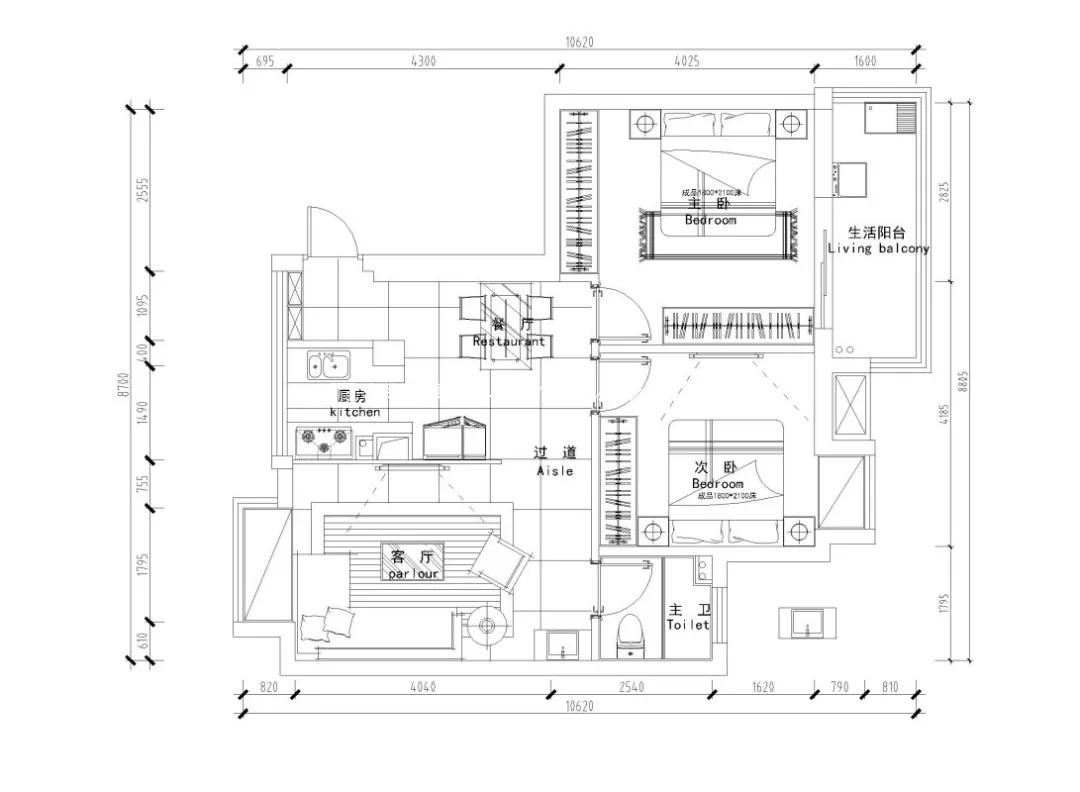
户型:2室2厅1厨1卫1阳台

该户型是传统三口之家的结构,总面积不大,所以需要在保证空间必要留白的同时,提升收纳、采光等实用性,对于这个问题,设计师的应对方式是开放式厨房+大空间客厅。这样一来,厨房避免了逼仄感,也尽可能保留了客厅的公共活动空间。
今天案例的业主是一对在黄埔打拼多年的成功小青年。对于家,他们有独特的想法和见解。
在与设计师沟通时,他们便提出希望客厅的空间能在视觉上有延伸感,对于这个要求,设计师便加入了白色PU线条和灰色的地砖,在达到了延伸空间感的同时,又增添了家的质感。类似的设计,在全屋中比比皆是。
其实设计师在设计的过程中,最怕的就是户主没有想法,如果你的意见准确又有细节,那你们合作出来的家一定是舒适的。今天的案例就是很好的例子。




Copyright © 2022.广州市健明迪有限公司 .粤ICP备2022046874号