透明的玻璃窗设计,将阳台很好的采光和开阔的视野都延伸到房间里。阳台的外墙采用原始砖墙设计,增加了房屋整体的年代感,有一种工业风复古的粗犷气息,与房屋内部轻奢的气质形成了一定程度的反差,让美感更加凸显出来。

将生活中富有美感的元素巧妙的组合在一起,服务于家居。这就是设计的核心意义,就像健明迪广为流传的一句话,好设计,让家更懂你。
如果我是十
那么你就叫八九
因为十有八九
「 而八九不离十 」
厨房
由于厨房的空间比较大,所以将之设计为中岛吧台的结构,这样的设计极大的增加了厨房与吧台的互动性。吧台的一侧还贴心的增加了红酒架,这样的设计不仅别致美观,也增加了吧台用于休闲饮酒的功能性。

7
卧室
实木地板给人一种舒适自然的包裹感,同时金属和黄色的点缀,让空间有一种温暖的感觉。柔软的床垫、细腻的皮革、松软的被套,还有窗外隐隐透过的月光,都在暗示关于夜晚和睡眠的美好。

6
茶水间
这里与客厅唯一的区别在于,这里不是会客区,而是可以沉下心来享受安静时光的净土。在午后的时光,泡一壶茶,品一本平日里觉得晦涩的书籍,不用担心冷场,细细聆听内心的声音就好。

5
娱乐室
三楼合理的利用空间,建造了一个多媒体娱乐室。在静谧的空间里,关上所有灯光,拉起窗帘,打开投影仪,看一场关于别人故事的电影,无疑是一种将自己置身外的最好方式。

4
餐厅
餐厅融入了混搭的风格,将金属的奢华精致和年轻的宝蓝、橘红色相搭配,增加了空间的活力,艺术画和绿植的点缀,给人一种优美的生活情调。像一首缓慢而悠扬的乡村民谣,将生活中酸甜苦辣都融进时光的风里,洋洋洒洒,飘散在回忆和明天的憧憬中。

3
客厅
地板采用具有天然纹路的灰色大理石铺陈,与房间整体的浅色调风格完美搭配。大理石地板厚重温润的质感,也正好符合业主对于轻奢格调的要求。由于房间整体的采光性都很好,客厅去掉了主灯,反而多用柔和的壁灯代替,给人一种简洁而休闲的感觉。

2
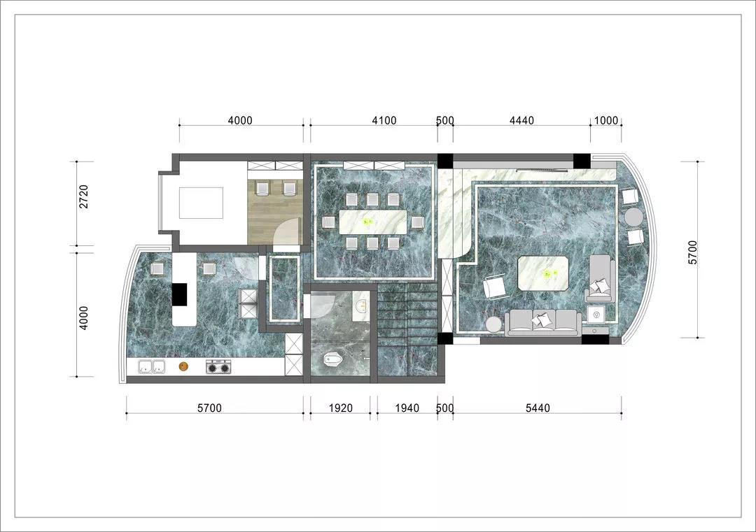
户型



结构亮点:
1,客厅到餐厅台阶做了一个延伸,起到了连接作用。第一台阶巧妙的和电视柜接通,让整个空间更加贯通,增加了客餐厅的交融气氛。
2,原顶面最深的梁有50CM深,通过做九宫格吊顶设计加上叠级线处理,解决梁裸露出来突兀的问题,同时良好的层高也确保房间不会给人压抑的感觉。
3,楼梯栏杆用钢化玻璃代替,扶手用不锈钢代替,极度简单而又耐用,弱化了传统楼梯给人繁重的感觉,与轻奢的整体风格完美的融合。
1
二手房翻新装修,考虑到空间比较大但是客户的预算有限,在保证全屋具有轻奢美感的气质下,巧妙的搭配美式混搭的元素,将三楼设计成工业风,不仅增加了整体风格的多元化,也可以减少预算和成本。一二层依旧沿用当下最流行的轻奢风格,加入鲜亮的蓝色和橘色元素点缀,适当的增加了全屋的活力和温度。
本案例想体现的核心在于:关于生活中的美和遇到的人一样,是多元的,甚至是意想不到的,如此一来,才会有猝不及防相遇和怦然心动的第一眼。
本案例是


设计理念




Copyright © 2022.广州市健明迪有限公司 .粤ICP备2022046874号