生活节奏太快?111㎡现代简约带你寻回慢生活

东莞健明迪,轻奢品质·悦享生活!我们只为做更好的家庭装修!
 
推荐阅读:133㎡中式尽显儒雅端庄,根本无法拒绝!
后期软装搭配
1、客厅软装意向
 
客厅软装
 
客厅软装设计意向:灰色系和咖啡色系的家具材质,考虑到打扫方便的同时,也要兼顾质感的凸出。
 
2、餐厅软装意向
 
餐厅软装
 
餐厅软装设计意向:采用暖色系材质,让用餐更有食欲,也能加强家的温馨感。

3、主卧软装意向
 
主卧软装
 
主卧软装设计意向:用灰色质感的材质配合深咖啡色,显示出夫妻两人的生活品质高雅有情调。

4、次卧软装意向
 
次卧软装
 

5、阳台软装意向
 
阳台软装
 
生活阳台(洗衣房)软装设计意向:彩色的配置,让生活阳台原本枯燥的空间,变得活泼。

6、卫生间软装意向
 
卫生间软装
 
卫生间软装设计意向:私密的卫生间,配以原木和大理石材纹路砖的结合。干净整洁的质感,彰显主人的生活品味。
 
各空间意向图展示
1、客厅
客厅1

客厅2
 
2、电视墙沙发背景
电视墙沙发背景1

电视墙沙发背景2
 
3、沙发背景墙
沙发背景墙1
 
沙发背景墙2
 
4、餐厅背景展示
餐厅背景1

餐厅背景2
 
5、卧室
 
卧室1

卧室2

 
6、次卧榻榻米
次卧榻榻米1

次卧榻榻米2
 
 
7、卫生间
卫生间1
 
 
卫生间2
 
 
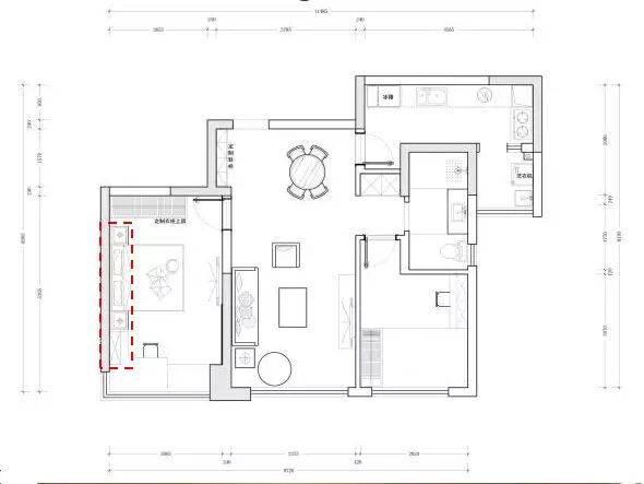
户型前期改造设计
1、平面布置图
平面布置图
东莞健明迪
楼盘:绿地GIC
面积:111㎡
 
健明迪 设计团队
 
设计师
 
健明迪•云顶设计中心
 
业主需求:由程序编辑师,都市白领和幼稚园小朋友构成的三口之家,对生活品质有较高的追求,希望通过设计使家庭生活更方便。
 
业主风格喜好:现代简约风格
 
居家常住人口:3人
 
现代简约风格
 
风格定位:现代简约
 
风格说明:
 
现代风格外形简洁、功能强,强调室内空间形态和物件的单一性、抽象性。
 
现代简约风格,顾名思义,就是让所有的细节看上去都是非常简洁的。装修中极简便是让空间看上去非常简洁,大气。装饰的部位要少,但是在颜色和布局上,在装修材料的选择配搭上需要费很大的劲。
 
整体色彩配置定位:
 
色彩配置
 
60%为主体家具   家居布艺   家具框架的色彩                   
30%为居室窗帘   床品   地毯的颜色                           
10%为其它点缀色
 
整体是简洁大方为主,重装饰轻装修。整体色调以咖啡色系为主,用深浅色调的穿插使得空间富有层次感。灰色电视墙彰显空间的独特性。
 
现代简约 生活
 
生活方式定位:
 
都市,有偏见的人爱抱怨生活的节奏太快,却不知每一首都市序曲都是自己亲自谱写亦是亲自演绎。
 
旋律,看不见也摸不着,时常在耳边回响,偶尔感到快乐,偶尔感到悲伤,偶尔觉得无奈,偶尔情绪激昂。
 
这,不恰恰诠释了生活的真谛?!
 
在噪杂的都市空间里利用人体工程学的定义重新诠释生活的品质……
 
现代简约
 
生活节奏太快?111㎡现代简约带你寻回慢生活
公司简介
健明迪装饰提供的生活节奏太快?111㎡现代简约带你寻回慢生活,东莞健明迪,轻奢品质·;悦享生活!我们只为做更好的家庭装修!推荐阅读:㎡中式尽显儒雅端庄,根本无法拒绝!后期软装搭配、客厅软装意向客厅软装;客厅软装设计意向:灰色系和咖啡色系的家具材质,考
生活节奏太快?111㎡现代简约带你寻回慢生活
生活节奏太快?111㎡现代简约带你寻回慢生活
生活节奏太快?111㎡现代简约带你寻回慢生活
生活节奏太快?111㎡现代简约带你寻回慢生活

为您推荐
东莞家装|墙面掉漆,怎么办?

东莞家装|墙面掉漆,怎么办?

家居风水|为什么我家床单不能选这些色?

家居风水|为什么我家床单不能选这些色?

133㎡中式尽显儒雅端庄,根本无法拒绝!

133㎡中式尽显儒雅端庄,根本无法拒绝!

健明迪品质再升级,携手德国涂料鼻祖舒纳沃恩

健明迪品质再升级,携手德国涂料鼻祖舒纳沃恩