案例 | 113㎡清新美窝,尽享北欧风情

东莞健明迪包含主材类别及客户自购定制产品,设备类产品。
 
 
推荐阅读 :
 
如何将113㎡混搭风玩出新高度?他们做到了...
 
文化石电视墙彰显空间的独特狂野
 
文化石电视墙
 
色调意向情景:
 
色调意向情景
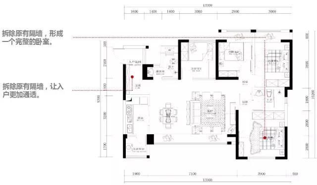
户型前期改造设计
 
1、原始户型图
 
原始户型图
 
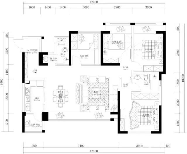
2、改后平面布置图
 
改后平面布置图
 
3、空间优缺点分析
 
空间优缺点分析
 
4、设计重点
 
设计重点图
 
各空间意向图展示
 
1、电视背景墙
电视背景墙1
 
电视背景墙2

 
2、餐厅
餐厅1
 
餐厅2
 
3、主卧
主卧1
 
主卧2
 
4、次卧
次卧1

次卧2
 
5、卫生间
卫生间1

卫生间2
 
6、生活方式定位
 
生活方式定位图
7、风格定义
 
风格定义图
 
北欧风格以简约著称,具有很浓的后现代主义特色,注重流畅的线条设计
 
代表了一种时尚,回归自然,崇尚原木韵味,外加现代、实用、精美的艺术风格,正反映出现代都市人进入新时代的某种取向和旋律。
 
后期软装搭配
 
1、软装配饰
软装配饰图
2、主材配置方案
 
主材配置方案图
 
主材是指除现场隐蔽施工所需要的辅料之外所有可以直观见到的主要装修类的材料产品。
 
设计理念整体是简洁大方为主,重装饰轻装修。卧室可用深色背景墙进行衬托。整体色调以白色系为主,用深浅色调的穿插使得空间富有层次感。
 
风格定位:北欧风格
 
业主需求:五口之家,喜好北欧风格,追求时尚喜欢简单实用的设计,向往有一个温馨舒适的家居生活环境。
 
健明迪 温馨家居
 
东莞健明迪
楼盘:华熙528艺术村
面积:113㎡
风格:北欧
 
健明迪 设计团队
 
设计师
健明迪•云顶设计中心
 
北欧风情
 
案例 | 113㎡清新美窝,尽享北欧风情
公司简介
健明迪装饰提供的案例 | 113㎡清新美窝,尽享北欧风情,;东莞健明迪包含主材类别及客户自购定制产品,设备类产品。;推荐阅读:如何将㎡混搭风玩出新高度?他们做到了;文化石电视墙彰显空间的独特狂野。文化石电视墙;色调意向情景:色调意向情景
案例 | 113㎡清新美窝,尽享北欧风情
案例 | 113㎡清新美窝,尽享北欧风情
案例 | 113㎡清新美窝,尽享北欧风情
案例 | 113㎡清新美窝,尽享北欧风情

为您推荐
2017最旺宅的植物,没有之一

2017最旺宅的植物,没有之一

搞半天,家庭装修的先后顺序是这样子的......

搞半天,家庭装修的先后顺序是这样子的......

如何将113㎡混搭风玩出新高度?他们做到了...

如何将113㎡混搭风玩出新高度?他们做到了...

别找了!你要的厨房攻略,全都在这里了!

别找了!你要的厨房攻略,全都在这里了!