如何将113㎡混搭风玩出新高度?他们做到了...

我在这里等着你!
 
 
推荐阅读 :揭秘:194㎡温馨美式,顶跃洋房的蜕变之路
 
 
东莞健明迪装修
楼盘:528艺术村
面积:113㎡
 
健明迪 云顶设计团队
 
设计团队
 
健明迪•云顶设计中心
 
业主需求:三口之家,崇尚时尚、经典,成熟稳重,希望装修好后可以和孩子搬进去共享受天伦之乐。装修要求品味大气,温馨舒适。
 
健明迪 混搭风格
 
风格定位:混搭风格
 
设计理念概述:混搭风格糅合东西方美学精华元素将古今文化内涵完美地结合于一体,充分利用空间形式与材料,创造出个性化的家居环境。
 
混搭并不是简单地把各种风格的元素放在一起做加法,而是把它们有主有次地组合在一起。
 
混搭的是否成功,关键看是否和谐。最简单的方法是确定家具的主风格,用配饰、家纺等来搭配,中西元素的混搭是主流。
 
一、户型前期改造设计
 
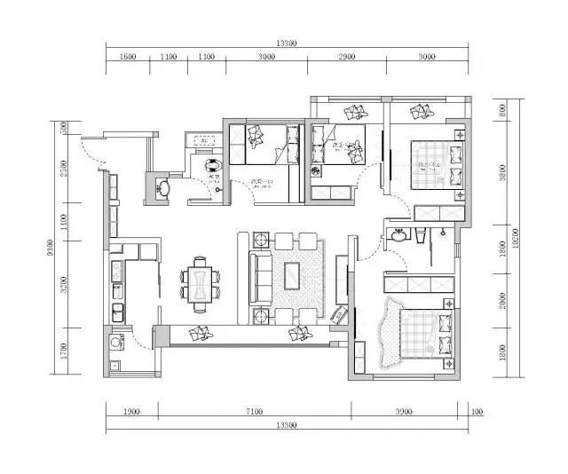
    1、原始户型图
原始户型图
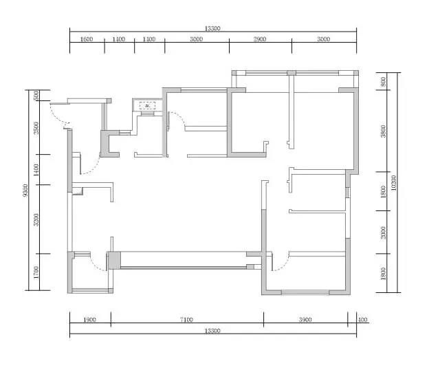
    2、改后平面布置图
改后平面布置图
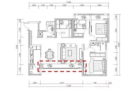
    3、户型缺点分析
户型缺点分析
 
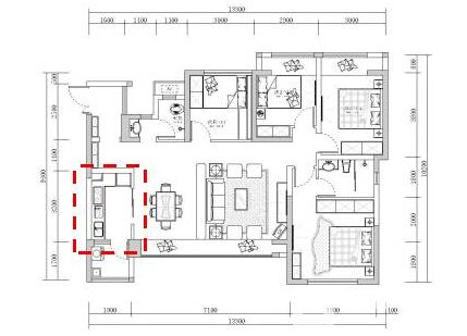
    4、户型改造分析
户型改造分析
 
二、各个空间意向图展示
 
    1、电视背景墙
电视背景墙1

电视背景墙2
 
    2、客厅
 
客厅1

客厅2
 
    3、沙发背景墙
 
沙发背景墙1

沙发背景墙2

沙发背景墙3
 
    4、客厅飘窗
客厅飘窗1

客厅飘窗2
 
    5、儿童房
儿童房1

儿童房2
 
    6、客卧
客卧1

客卧2
 
    7、主卧
主卧1

主卧2
 
    8、书房
书房1

书房2
 
    9、厨房
厨房1

厨房2
 
    10、卫生间
卫生间1

卫生间2
 
 
三、储存空间设计
 
    1、住宅收纳空间设计原则
 
住宅收纳空间1
 
年轻人在装修房子以时尚、美观为主,空间功能需求满足了,收纳空间的处理基本被忽略了,特别是对储藏室重要性认识不够,后来搬进去才发现问题很多。
 
特别是有了孩子以后,发现空间越来越小,东西越来越多,没有多余的空间来放更多的东西,这时才察觉到收纳空间的重要性。
 
    2、收纳空间的艺术性
 
住宅收纳空间2
 
艺术性,也就是造型与装饰的形式美感
 
对于储存空间而言,常见的装饰部位有储藏室、衣帽间的门和灯具、各种橱柜门、抽屉的拉手等。
 
实用性强,收纳同时具有展示的含义。家庭中的书籍、艺术品、旅行纪念品、有特殊含义的物品,都需要摆放在外面展示给大家看。
 
如中国古人用的博古架便是经典的设计,在搁板上错落有致的摆放或高或低的艺术品。不仅整洁有序的集中展示了艺术品,还美化室内空间。为了配合室内装修风格现代人多用展示柜摆放艺术品
 
四、后期软装搭配
 
    1、软装配饰图
软装配饰图
    2、洁具示意图
洁具示意图
(完)

轻奢品质,悦享生活!
我是
健明迪混搭风格图
 
如何将113㎡混搭风玩出新高度?他们做到了...
公司简介
健明迪装饰提供的如何将113㎡混搭风玩出新高度?他们做到了...,东莞健明迪装修,;我在这里等着你!推荐阅读:揭秘:㎡温馨美式,顶跃洋房的蜕变之路东莞健明迪装修;楼盘:艺术村;面积:㎡健明迪云顶设计团队设计团队健明迪•云顶设计中心业
如何将113㎡混搭风玩出新高度?他们做到了...
如何将113㎡混搭风玩出新高度?他们做到了...
如何将113㎡混搭风玩出新高度?他们做到了...
如何将113㎡混搭风玩出新高度?他们做到了...